МАРСНИЙ СИНАТЕР 50T/D ~ 150 т/д
ТОВ «Тенор низький вуглець» (Liaoning) Co., Ltd. було засновано в 2021 році, компанія розташована в місті Далянь, Даляновий університет технологічних інкубаційних парку, база виробництва розташована в місті Янтун, село Паоай, місто Вафандіан, Ляонінг Провінція. Наша компанія охоплює загальну площу 500, 000 квадратних метрів, понад двісті працівників, з основними засобами 500 мільйонів юанів, понад 400 наборів основного виробничого обладнання, обробки, заклепки та зварювання, кастингу, збирання та Інші виробничі семінари, з двома вдосконаленими, компанія має дві вдосконалені виробничі лінії для деза в Данії, що підтримує автоматичне обладнання для сферизації та обладнання для спектрального моніторингу, а якість продукції знаходиться на провідному рівні в Китаї.
Основний бізнес компанії включає дизайн, виробництво, розробку технологій та продаж повних наборів обладнання для лікування відходів, компанія давно тісно співпрацювала з технологічним інститутом Харбіна, технологічним університету Далян, Нанкінським університету науки та технологій та інших відомих університетів , з надійною професійною технічною підтримкою, досвідченою командою дизайну, щоб забезпечити клієнтам високоякісні продукти.

Наша виробнича база


Виробничий семінар
Введення продукту
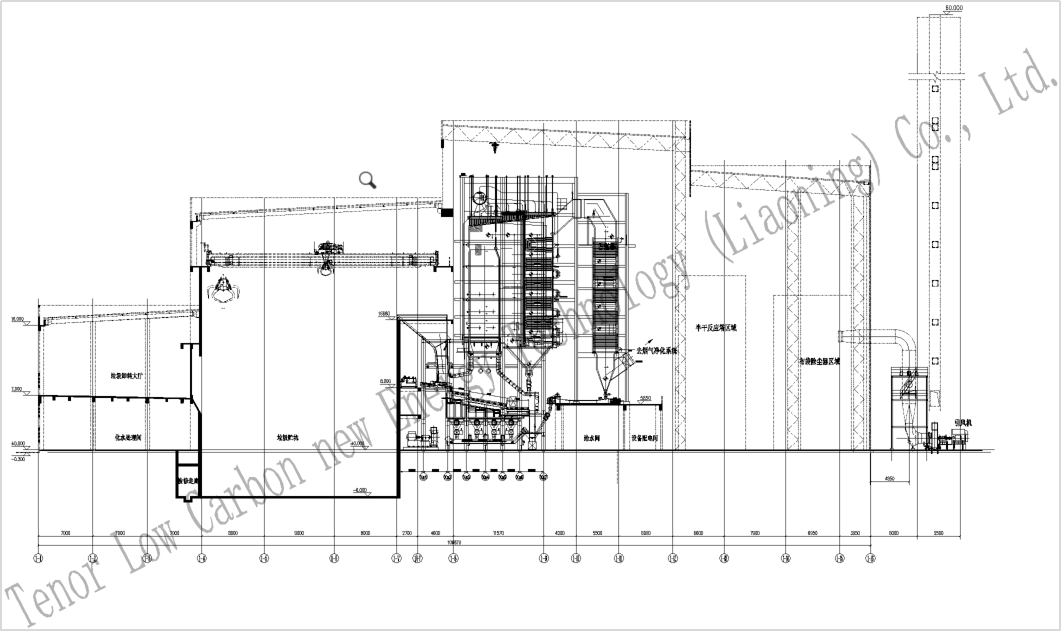
1. Опис Системи спалювання відходів

Накази спалювання відходів тенора розробляється Tenor New Carber New Energy Technology (Liaoning) Co., Ltd. Система спалювання складається з годівниці, решітки, попелу, конвеєра золи та зняття шлаком, і вона підходить для внутрішніх проектів спалювання відходів з спалюванням відходів з щоденна ємність 30 ~ 600 тонн.
Діаграма потоку процесу
2
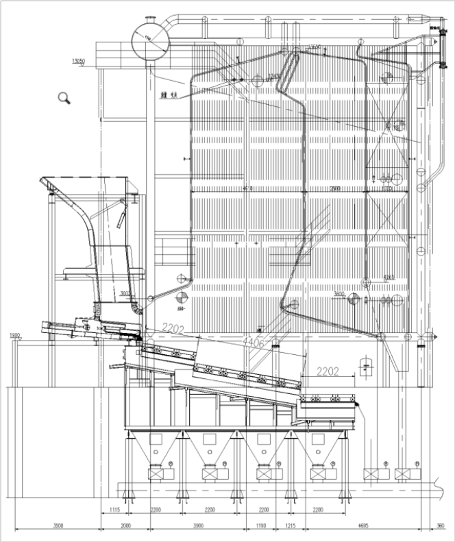
Hopper & Feeder
Система годування складається з хоппера та годівниці, внутрішніх воріт Хоппера, воріт, щоб забезпечити герметизацію одночасно, щоб врахувати функцію розриву мосту, у сміттєвому мостовому мосту заблокував хоппер через рух воріт, щоб реалізувати міст. Фудер і ворота керуються циліндрами, щоб штовхати певну кількість сміття в спалювальну сміттєзвалища через періодичні зворотні поштовхи та рухи потягування, а годівниця може регулювати швидкість подачі відповідно до навантаження інкенерації.

Крок зграя
Тенорне сміттєве спалювання решітки-це вниз похила схильна зворотно-покоління і сміття підштовхується до переміщення, і в той же час сміття не заважає збирати разом, щоб призвести до неповного згоряння. Крокна решітка керується гідравлічними циліндрами, а три секції решітки можна контролювати незалежно, щоб цикл руху решітки можна було відрегулювати відповідно до стану згоряння в печі. Ретня виготовлена з теплостійкої литлої сталі, яка має хороші стійкі до зносу, високотемпературні та корозійні властивості.




Конвеєр попелу, засоби для зняття шлаку
Система золи складається з хоппера для попелу недостатнього переробки (повітряна камера Cum), горизонтального конвеєра попелу та зняття шлаку. Невелика кількість тонкої попелу, що виробляється після повного спалювання відходів, потрапляє в бункер для попелу через решітку, а потім збирається в горизонтальному конвеєрі золи. Основна зола, що утворюється при спалювання відходів, штовхається у відро шлаку через решітку секції спалювання, а потім потрапляє у мокрий шлак, разом із дрібною золом. Весь попіл відправляється в яму шлаку шляхом усунення шлаку.

3. Характеристики роботи
- Проста структура, проста в експлуатації та підтримка;
- Ретня стійка до високої температури, корозії та стирання, з низькою швидкістю заміни;
- Навіть розподіл повітря решітки, рівномірне спалювання сміття;
- Адекватне сміттєве спалювання, швидкість зменшення термічного скорча менше або дорівнює 5%;
- Модуляризація обладнання, проста установка, короткий період будівництва;
- Обладнання повністю автоматизоване.

4.scope of Services
Надійне обладнання для спалювання відходів

Повне процес розчину для спалювання відходів

Рішення застосування
|
Потужність |
Технологічний процес |
Основний параметр |
Обсяг застосування |
|
50t/d |
①garbage в печі → спалювання → охолодження → очищення диморокого газу → стандартний розряд ② сміття в печі → спалювання → тепловий котел → очищення димових газів → стандартний розряд |
Щоденна потужність обробки: 50т насичена ємність пари: 3 ~ 5t/год |
Проект з щоденною переробною потужністю 50T підходить для нешкідливого та зменшення обробки побутових відходів у невеликих районах села та міст. Залежно від ситуації з проектом, високотемпературний димовий газ може бути безпосередньо охолоджений і очищений перед випискою, або для виробництва та продажу пари може використовуватися 3 ~ 5T/H. Він не підходить для виробництва електроенергії. Проект невеликий за масштабами. Відповідно до передумови дотримання тих самих стандартів охорони навколишнього середовища, вхід на тонну сміття занадто високий, і проект не має точки прибутку і не є економічно доцільним. Він підходить для некомерційних демонстраційних проектів або надійних користувачів пари для збільшення певної вихідної вартості. У цій схемі розташовані сміттєспаки та тепловий котел у цій схемі, розташовані горизонтально окремо і з'єднані високотемпературними димами. Порівняно з традиційними масштабними проектами спалювання відходів, загальна висота обладнання в цій схемі значно знижується, а загальна висота обладнання нижче 20 м. |
|
100~200t/d |
Відходи в печі → спалювання → тепловий котел → очищення димових газів → стандартний розряд |
Щоденна обробка: 100 ~ 200т Насичена парова ємність: 8 ~ 20t/год |
Проект із щоденною переробною потужністю 100 Т підходить для нешкідливих, на основі ресурсів та зменшення обробки побутових відходів у невеликих районах села та міст, а також відновлення тепла та використання. Він оснащений 8 ~ 10t/год насичених парових котлів. Шкала занадто мала і нестабільна, і вона не підходить для виробництва електроенергії. Однак випуск пари є значним, і його потрібно продати для отримання прибутку або вживати в поєднанні з іншими галузями, які потребують пари. Сцільний та відпрацьований тепловий котел розташований окремо і горизонтально. |
Справа проекту
Місто Ханой, В'єтнам, проект виробництва електроенергії 600T/D (Великий проект виробництва електроенергії)
Проект виробництва електроенергії 600T/D відходів у місті Ханой, В'єтнам використовує нашу триступеневу повну поступальну решітку для щоденної обробки відходів 600T, з набором генератора 75T/H +18} MW генератора. Наразі проект будується.


В'єтнам Ханой -Сіті 70T/D Проект спалювання побутових відходів
Проект спалювання твердих відходів у місті Ханой, В'єтнам використовує нашу триступеневу повну поступальну решітку для обробки 70 т твердих відходів на день. Обладнання є у виробництві.


70 т/д вітчизняних відходів решітки
Проект Zhengxiangbai Banner Banner Rural Therdsmen Living Living (University University) (невелике обладнання для спалювання відходів)
Проект Zhengxiangbai Banner Banner Rural Therdsmen Living Living Environment.

приймає наш нахилений зворотно -поступальний Stoker для обробки 30 -метрового побутових відходів на день. Наразі проект будується.
Як один з найпрофесійніших постачальників сміттєзвалищів у Китаї, ми представлені якісними продуктами та хорошим обслуговуванням. Будь ласка, будьте впевнені, що купують високоякісні сміттєспаки, виготовлені тут у Китаї з нашої фабрики.





